Оренда офісу у бізнес центрі Sigma , вул. В .Гавела, 6 літера У. 2
г. Киев. Соломенский р-н, Вацлава Гавела 6
668
11 мая 2024
ID 4247
99 713 грн
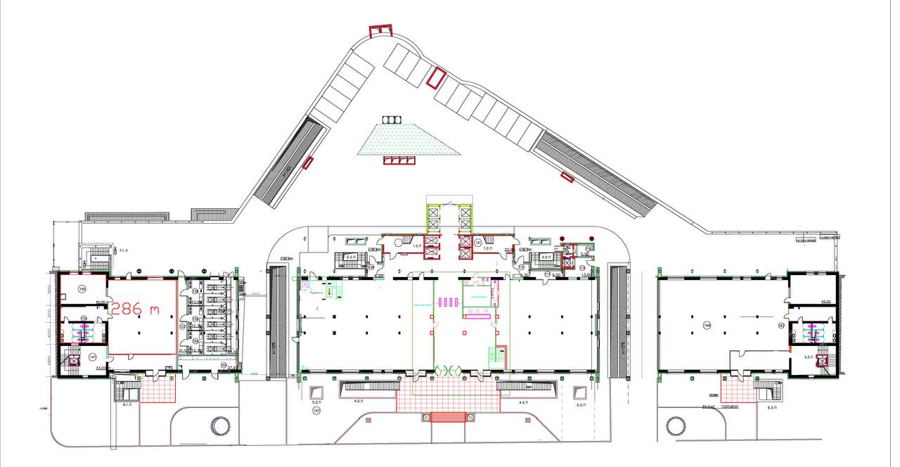
Аренда Офис 286 м2
Оренда офісу у бізнес центрі Sigma , вул. В .Гавела, 6 літера У. 286 кв.м, перший поверх, є окремий вхід з фасаду. Укриття, генератор, парковка. Стан приміщення - без ремонту. Орендна ставка - 6 у.о. Без ПДВ, експлуатаційні платежі - 3,5 у.о. Без ПДВ. . Без комісії для орендаря. 0994325314 0965281750 Андрій
Тип здания:
Бизнес Центр
Планировка:
Количество комнат:
1
Состояние:
Стандартная отделка
Тип договора:
Прямая аренда
Этажность:
2-3
Вход:
Общий
Наличие мебели:
Парковка:
Собственная крытая
Возможное назначение:
IT айти, Агентство , Для приема клиентов, Для работы с документацией, Учебный центр
C комиссией:
Нет
Юр. адрес:
Нет
Киев , Вацлава Гавела 6
Похожие аренды в г. Киев
Власник, сдам склад з рампою 1388 м2., поруч Н. Пошта, пл. Космонавтiв
г. Киев, Ушинского, 40
Аренда, Склад 1388м2
Оренда офіс з меблями 100 м2 на Позняках, метро Позняки. № 1418914
г. Киев, Григоренко Петра просп. 26а
Аренда, Офис 100м2
Полезные статьи
Смотреть всеВажная новость
Ми запустили новий сайт — ukrin.ua
Свежие новости Украины и афиша бизнес-мероприятий: конференции, форумы, выставки и нетворкинг. Добавляйте свои события и находите новые возможности для бизнеса.
Читать полностью
Domin.ua - новый сайт недвижимости
Domin.ua - это новый сайт недвижимости, который был запущен не так давно. Несмотря на свою молодость, он уже стал популярным украинским ресурсом для поиска и покупки недвижимости. В этой статье мы рас
Читать полностью
Натяжные потолки в Офисе из разновидность и преимущества
При проведении ремонтных работ в любом объекте следует понимать, что каждый процесс характеризуется определенными тонкостями. Поэтому к ремонту квартиры, офиса или дома стоит относиться серьезно.
Читать полностью
Комментарии